大阪府営住宅
- 管理センター
-
- 千里
- 高槻
- 守口
- 泉北
- 堺東
- 岸和田
| 住宅コード | 4014 |
|---|---|
| 住宅名 | 枚方津田第2 |
| 所在地 | 枚方市大峰南町 |
| 交通機関 |
JR学研都市線『津田』駅 → 京阪バス『津田』駅 → 西野村 |
| 校区(小・中学校) |
枚方市立津田小学校(約1100m)/枚方市立津田中学校(約1200m)
|
| 保育園・幼稚園 | 光の峰保育園(約450m)/春日東野幼稚園(約1400m) |
| 浴槽 | 設置なし(お風呂リース制度の利用可能。※一部浴槽のみ設置有り。給湯器は入居者される方の個人負担で設置していただきます。※車いす乗用車世帯向け住戸は浴槽・風呂釜設置済み) |
| 階層 | 5 |
| エレベーター | なし(一部の棟で後付けEV有り) 【参考】総戸数244戸(入居中206戸・空家38戸(手続き中12戸・募集中9戸・募集準備中15戸・停止中2戸) |

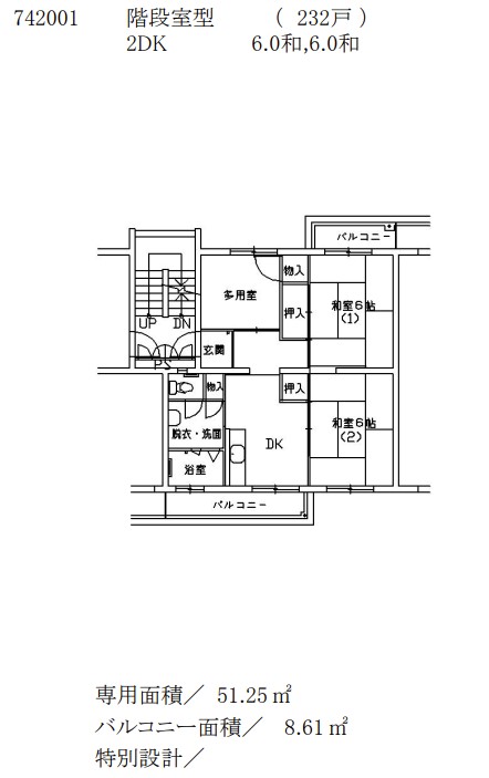
表示している画像は、この住宅における代表的な間取り及び内観写真です。必ずしもこのような間取り及び内観写真とは限りません。